Hello you. This week I am going to totally geek out. I’m talking about Auto-CAD, yes, really. The software of architects, engineers and designers around the globe. Please don’t roll your eyes. I’m trying to be serious here. This is a serious topic but that doesn’t mean it needs to be boring.
When I think about Auto-CAD we are talking #lifegoals. I always dreamed of being an architect but got lured into the bright lights of Marketing when at University. Don’t get me wrong, I loved my career & it was life changing. I worked with some of the biggest brands and interesting start-ups too. There were loads of amazing assignments, exotic travels around the globe and long hours. I don’t regret a minute of it.
Now I’m taking a different path & focused on my second career, a passion of mine, interior design. That means I can geek out over architecture and legitimately say … “sexy” to describe buildings, interiors & chairs and people won’t look at me funny. wink wink

But back to Auto-CAD. Studying Interior Design means getting my head around the ins & outs of designing a room and floor plan in Auto-CAD. Before I started my online course, I knew zip zilch nada about Auto-CAD. I didn’t have the software nor had I ever used it. So we are talking a real novice, a true Beginner. Does this sound familiar?
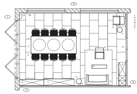
There might be other folks out there that are thinking should I or shouldn’t I learn Auto-CAD. I’m here to say, it isn’t that intimidating, jump in! So, I thought I’d share some helpful tips to make learning Auto-CAD more enjoyable and dare I say F-U-N. Eeek. I also wanted to give you some confidence that you too can create a 2-D floor plan and furniture plan. This is what I ultimately created.

Tip 1: Mouse
Yes. This does make all the difference. I’m totally a track pad kind of gal and this just doesn’t cut it when working in autocad. You need the right click, left click, zoom in & out features that are super easy with a mouse. I believe the technical term is “track wheel” or “track ball”. So bite the bullet & get one.
Tip 2:Videos
Before you start, watch some videos to get a general idea of what you are in for. These will help you get an idea of the flow, tool bars and some of the basics to creating a drawing. Just watch & listen. Here are a few of my faves:
For a good quick overview of what’s what, I’ve found Kyle Wong’s videos really helpful. He focuses on architecture and interiors. Click HERE.
Getting started “the basics” tutorial that is broken into 3 parts by SourceCAD. Click HERE.
Making a simple floor plan (note, this is in inches not metric) also by SourceCAD. Click HERE.
Tip 3: Use Two Screens
This may seem like an odd tip but you’ll quickly see why. While learning, google quickly became my best friend. Literally every 5 minutes I was typing “How to … in AutoCAD”, I would watch the video and then switch back to my drawing and then back to the video and back to the drawing. This wasted A LOT of time. So, after an hour, I decided to use my iPad for google searches “How to … in AutoCAD”. That way I could watch the videos on the iPad while I was working on my drawing on my laptop at the same time. #lightbulbmoment #timesaver #supergeek
Tip 4: Simple stuff
Start with the simple stuff. Yes, like drawing a straight line. Drawing a box. Copying the line. Copying the box. Practice each of the Draw and Modify tools, get comfortable using them. I know, this is boring and you want to jump right into making a floor plan – this will save you time in the long run. I promise.
Now you are ready to dive in, here are some of the common sense things you’ll need to know. Pay attention. These will save you time.
Spaces.
There is Model Space where you draw shit — vs — Paper Space where you print shit. It’s really quite simple, well, sort of, but not really, but kind of. I’ll come back to why this is important when I get into the tricks. Look at the bottom of your screen and you’ll see where you can switch between the Spaces.
Units. Aka Measurements.
First, before you do anything, set your units of measurements (aka inches or millimetres). STOP. Don’t be tempted to start drawing until you do this. Otherwise, it will lead to disaster, guaranteed. Especially when you want to scale your drawing.
Trick 1: Layers.
Think of this as a great way to organise a drawing – similar to how you’d organise a wardrobe or contents in your kitchen. Being organised saves time in life and in Auto-CAD. And who doesn’t like to save time? I used Layers for each separate item/area of the drawing. It gives more control and the option to turn Layers on/off so you can focus on one individual Layer without everything else getting in the way. Then turn all the Layers on to see the complete drawing. It is also useful when printing a drawing. I’ll explain why in Trick 2.

I created the following Layers on my drawing: Main walls – Hatch – Windows – Doors – Lighting – Flooring – Electrical – Elevations – Bulky Furniture – Delicate Furniture – Accessories (rugs, art, vases, etc) – Curtains – Dimensions – Text
Why so many Layers? Simple. You’ll want a different line weight (& possibly styles) for each of these when you print. Also. It’s helpful to isolate changes to just one part of the drawing. You can do this if you create a different Layer for it.
Trick 2: Line Weights.
While I’m talking about layers, I might as well warn you immediately about line weights. Avoid setting the line weights in Model Space. WARNING – AVOID. It’s best to avoid this part of the toolbar (see white arrow).

As it won’t actually change your line weights when you print. I’m not sure why it is there – perhaps when I become an Auto-CAD master, I can share this wisdom. I wasted a lot of time adjusting line weights here and it did nothing, except frustrate me.
Line style and Line weights are managed in PAPER SPACE. Yes. So, switch over to Paper Space.


Unfortunately I was late to the game in learning this piece of wisdom. The colours I selected for each Layer was completely random. Ugh. So I wasted a lot of time searching for the colours and then adjusting the line weights and re-adjusting them.

Going forward, I am now organising my Layers by the colours listed and from heaviest to lightest. So Red (colour 1) would be the heaviest weight (aka Walls), then Yellow (colour 2) next heaviest (aka Hatch), Lime Green (colour 3) would be 3rd heaviest (aka the Fitted Furniture), then Pale Blue (colour 4) is Heavy or Bulky Furniture, etc. This way I can re-use the line weights for all future drawings. #timesaver #megahack.
Trick 3: Copy. Move. Mirror. Offset. Block.
In my opinion, these are The Fab Five of Auto-CAD for beginners. I used them over & over & over again. The Copy command does as it says, makes a copy of anything you select. The Move command similar, select an item and drag it. The Mirror command makes a mirror copy of an item. The next two might take a bit of explaining. Reminder: I’m no expert. The Offset command is a life saver when creating anything with a repeat pattern (aka like a built-in with wood slat design). You can copy an item and specify the distance to place it (aka like 100mm or 50mm or 200mm, etc). The Block command is to group a bunch of items in your design. It’s great when designing a window, door, or piece of furniture that you will use over & over again.
My best advice is to go on over to your best friend “google” and type in “How to create a block in autoCAD” watch the video. Repeat the same for the FAB Five.
Trick 4: Toolbars vs Command Box
I pretty much stuck to the toolbar for most of my floor plan and furniture plan, however I did start to use the command box which is a great short cut and mega time saver. When I asked for advice, people said “short cuts” but I didn’t know what this was until I was nearly complete with my floor plan.
I also didn’t know about Audrey Noakes when I was getting started on Auto-CAD, but she’s just run a month of helpful tips … including SHORTCUTS … so have a read of her blog!

Well that’s it, my top 4 tips and my top 4 tricks. You’ve definitely earned yourself a drink & treat. Go on, a small reward. I hope you enjoy drawing as much as I have. This is what I was able to create for my Interior Design Course. It all started by drawing a basic floor plan and elevations with dimensions. It is all about perfecting the finer details like the wall thickness, the hatch, the windows and skirting boards. Then the challenge was getting it to print to scale at 1:50 ratio. I won’t lie, it took around 10 attempts.

Then I added the Layers for the Flooring which is large scale tiles, the built-ins, the furniture and the lighting. I still need to figure out why the wishbone chairs are turning out so dark in my print version. #stillabeginner

Lastly, it was then creating elevations of the furniture and lighting. This required a lot of detail for the reeded glass doors, the wood slats for the built-in doors, door handles and even an attempt at curtains. Every single item is to scale.
So that’s a wrap on my beginner tips & tricks for Auto-CAD. I hope this was helpful and a touch enjoyable. A BIG thank you to everyone who told me to stick with it & keep going when I was ready to give up. I promise I’ll do the same for you and if you have any questions at all, please ask. Lastly for all you Auto-CAD mavens out there — if you have any advice, please share! As always, thanks for reading.
Cheers,
Liz xx
One Comment